Aleksanterin teatterin laajennusosaan hotelli – kaksi vaihtoehtoa kaupunkilaisten kommentoitavana
15.4.2024 13:16:45 EEST | Helsingin kaupunki, kaupunkiympäristön toimiala | Tiedote
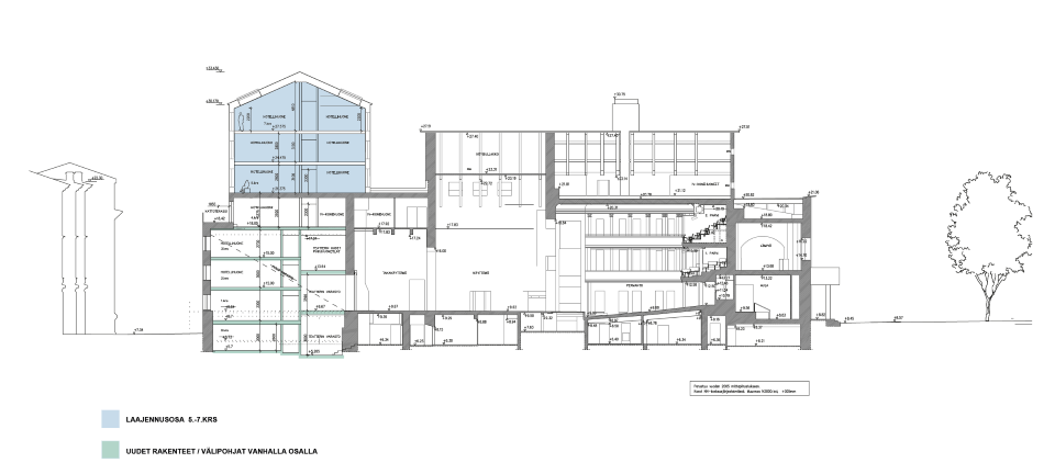
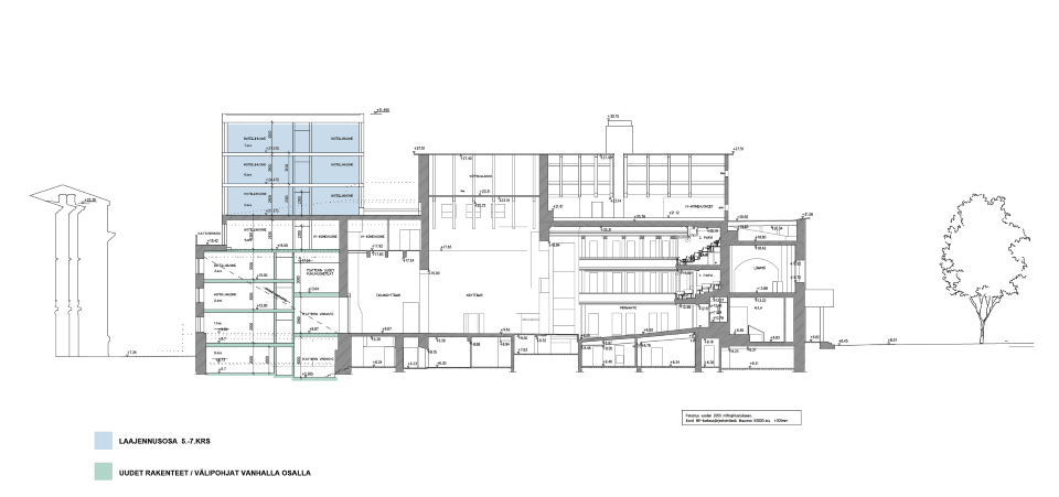
Bulevardin varrella sijaitsevan Aleksanterin teatterin tontilla on käynnistynyt asemakaavan muutos. Teatterin vuonna 1953 valmistuneeseen laajennusosaan on suunnitteilla hotelli, jota varten laajennusosaa korotetaan kolmella kerroksella. Kaupunkilaisilta pyydetään palautetta laajennusosan kahdesta vaihtoehdosta 6. toukokuuta mennessä.

Senaatti-kiinteistöt on myynyt Aleksanterin teatterin yksityiselle kiinteistönomistajalle vuonna 2022. Uuden omistajan tavoitteena on kehittää kiinteistöä teatteri- ja hotellikäytössä. Teatteritoiminta jatkuu rakennuksen vanhassa osassa nykyiseen tapaan eikä sinne olla tekemässä merkittäviä muutoksia. 1950-luvun laajennusosassa on nykyisin muun muassa teatterin varastotiloja ja harjoitussaleja. Ne siirtyvät muutoksen myötä teatterin vanhaan osaan.
Molemmissa vaihtoehdoissa laajennusosa saa kolme uutta kerrosta
Kaavamuutoksen lähtökohtana on, että hotellikäyttöä varten teatterin laajennusosalle sallitaan lisää kerrosalaa. Arkkitehtonisia ratkaisuja ei kuitenkaan vielä ole lyöty lukkoon, minkä takia suunnitelmasta on laadittu kaksi vaihtoehtoa. Suunnitelmat voivat vielä muuttua kaavoituksen aikana.
Vaihtoehdot eroavat toisistaan ainoastaan kolmikerroksisen uudisosan arkkitehtuurin ja massoittelun osalta. Laajennusosan julkisivuista osa säilytetään sellaisenaan ja loput rakennetaan uudelleen alkuperäistä 50-luvun ilmettä mukaillen.
Molemmissa vaihtoehdoissa on säilytetty kaupunkikuvallisesti merkittävät puut Albertinkadun ja Bulevardin varrella, vähennetty pysäköintipaikkojen määrää sekä muodostettu teatterille ja hotellille nykyistä selkeämmät edusaukiot.
Asemakaavan muutoksen yhteydessä tarkastellaan myös tontin rakennussuojelun kokonaisuutta. Teatterin vanha osa on jo nykyisin suojeltu rakennussuojelulain mukaisella asetuksella. Lisäksi vanhalle osalle on vireillä päivitetty rakennusperintölain mukainen suojelupäätös Uudenmaan ELY-keskuksessa. Laajennusosaa ei nykyisin ole suojeltu, mutta sen Bulevardin puoleisen julkisivun suojelua tutkitaan asemakaavassa.
Tutustu suunnitelmiin ja anna palautetta 6. toukokuuta mennessä
Suunnitelmiin voi tutustua ja niitä voi kommentoida Kerro Kantasi -palvelussa osoitteessa https://kerrokantasi.hel.fi/ 15.4.–6.5.2024 välisenä aikana. Kerro kantasi –sivulla voi myös katsoa suunnitelmista kertovan videotallenteen.
Osallistumis- ja arviointisuunnitelmaan ja kaavan valmisteluaineistoon voi tutustua 15.4.–6.5.2024 verkkosivuilla https://www.hel.fi/suunnitelmat. Kirjalliset mielipiteet osallistumis- ja arviointisuunnitelmasta sekä valmisteluaineistosta pyydetään lähettämään Helsingin kaupungin kirjaamoon viimeistään 6.5.2024.
Kun mielipiteet on saatu, suunnittelu etenee ja laaditaan kaavaehdotus. Kaavaehdotus viedään päätöksentekoon vuonna 2025.
Avainsanat
Yhteyshenkilöt
Otso Huhtala
arkkitehti
Helsingin kaupunki, asemakaavoitus
p. 09 310 37296, otso.huhtala@hel.fi
Kuvat







Linkit
Helsingin kaupunki, kaupunkiympäristön toimiala
PL 58200, 00099 Helsingin kaupunki
09 310 2611
http://www.hel.fi/kaupunkiymparisto
Kaupunkiympäristön toimiala huolehtii Helsingin kaupunkiympäristön suunnittelusta, rakentamisesta ja ylläpidosta, rakennusvalvonnasta sekä ympäristöön liittyvistä palveluista.
Muut kielet
Tilaa tiedotteet sähköpostiisi
Haluatko tietää asioista ensimmäisten joukossa? Kun tilaat tiedotteemme, saat ne sähköpostiisi välittömästi julkaisuhetkellä. Tilauksen voit halutessasi perua milloin tahansa.
Lue lisää julkaisijalta Helsingin kaupunki, kaupunkiympäristön toimiala
Kaupunkiympäristölautakunnan päätöstiedote 31.3.202631.3.2026 17:27:23 EEST | Tiedote
Helsingin kaupunkiympäristölautakunta kokoontui tiistaina 31.3.2026. Kokouksen päätöstiedote (yhteenveto tehdyistä päätöksistä) on julkaistu kaupungin verkkosivuilla: Päätöstiedote » Päätöstiedote näkyy verkkosivuilla siihen asti kun kokouksen pöytäkirja julkaistaan. Pöytäkirja korvaa valmistuttuaan päätöstiedotteen.
Ett nytt fotbollsstadion för 8 000 åskådare planeras i Åggelby27.3.2026 08:55:08 EET | Pressmeddelande
Staden planerar att bygga ett nytt fotbollsstadion i Åggelby idrottspark. Samtidigt ska övriga motions- och idrottsförhållanden i området förbättras. Intill idrottsparken, nära snabbspårvägen, ska nya bostäder för 500 invånare byggas.
Oulunkylään suunnitteilla jopa 8 000 katsojan jalkapallostadion27.3.2026 08:55:08 EET | Tiedote
Oulunkylän liikuntapuistoon suunnitellaan jalkapallostadionin rakentamista. Samalla kehitetään alueen muita liikunta- ja urheiluolosuhteita. Liikuntapuiston viereen pikaraitiotien läheisyyteen tulisi uusia asuntoja 500 asukkaalle.
Helsingin kaupunkiympäristölautakunnan ympäristö- ja lupajaoston päätökset 26.3.202626.3.2026 18:15:18 EET | Tiedote
Kokouksen päätöstiedote (yhteenveto tehdyistä päätöksistä) on julkaistu kaupungin verkkosivuilla: Päätöstiedote 26.3.2026 » Päätöstiedote näkyy verkkosivuilla siihen asti kun kokouksen pöytäkirja julkaistaan. Pöytäkirja korvaa valmistuttuaan päätöstiedotteen. Jaosto kokoontuu seuraavan kerran torstaina 9.4.2026
Avaruusteemainen leikkipaikka Pohjois-Helsinkiin26.3.2026 13:41:53 EET | Tiedote
Helsingin kaupunki suunnittelee uutta teemaleikkipaikkaa Siltamäkeen. Leikkipaikan kaikki kalusteet ja varusteet uusitaan avaruusteeman mukaisiksi.
Uutishuoneessa voit lukea tiedotteitamme ja muuta julkaisemaamme materiaalia. Löydät sieltä niin yhteyshenkilöidemme tiedot kuin vapaasti julkaistavissa olevia kuvia ja videoita. Uutishuoneessa voit nähdä myös sosiaalisen median sisältöjä. Kaikki tiedotepalvelussa julkaistu materiaali on vapaasti median käytettävissä.
Tutustu uutishuoneeseemme