Alexandersteaterns tillbyggnad får ett hotell – stadsborna får kommentera två alternativ
15.4.2024 13:16:45 EEST | Helsingin kaupunki, kaupunkiympäristön toimiala | Pressmeddelande
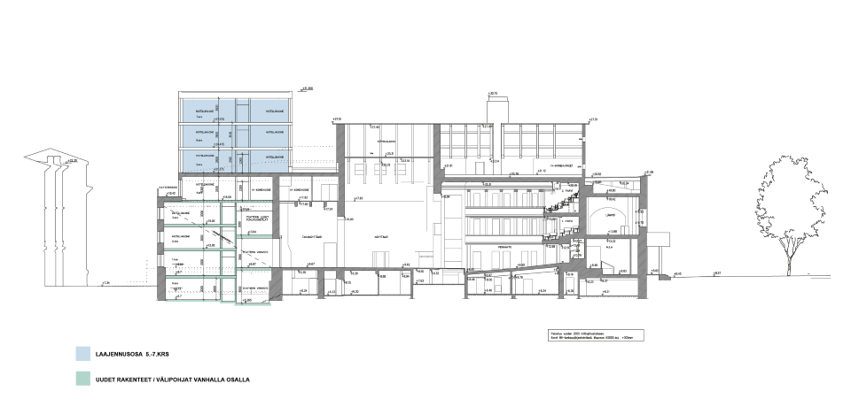
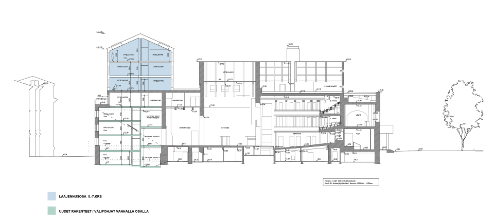
En ändring av detaljplanen har inletts för Alexandersteaterns tomt på Bulevarden. I teaterns tillbyggnadsdel från 1953 planeras ett hotell, och tillbyggnaden höjs därför med tre våningar. Vi ber stadsborna om respons på två olika alternativ för tillbyggnaden senast den 6 maj.

Senatfastigheter sålde Alexandersteatern till en privat fastighetsägare år 2022. Den nya ägaren har som mål att utveckla fastigheten för teater- och hotellbruk. Teaterverksamheten fortsätter som tidigare i byggnadens gamla del, och inga betydande ändringar kommer att göras i den. Tillbyggnaden från 1950-talet används för närvarande av teatern bland annat som förråd och för repetitioner. I och med förändringen kommer dessa att flyttas till teaterns gamla del.
Båda alternativen innebär att tillbyggnaden får tre nya våningar.
Utgångspunkten för planändringen är att mer våningsyta tillåts i teaterns tillbyggnadsdel för hotellbruk. De arkitektoniska lösningarna är dock ännu inte fastslagna, och därför har det utarbetats två alternativ för planen. Planerna kan ännu ändras under planläggningen.
Alternativen skiljer sig från varandra endast i fråga om den nya delens arkitektur och utformningen av byggnadsmassor. En del av tillbyggnadens fasad bevaras som sådan, och resten byggs om i enlighet med den ursprungliga stilen från 50-talet.
Båda alternativen bevarar de stadsbildsmässigt betydande träden på Albertsgatan och Bulevarden, minskar antalet parkeringsplatser samt bildar tydligare planer framför teatern och hotellet än för närvarande.
I samband med ändringen av detaljplanen granskas också byggnadsskyddet på tomten som helhet. Teaterns gamla del är redan skyddad genom en förordning enligt byggnadsskyddslagen. För den gamla delen finns också ett uppdaterat skyddsbeslut enligt byggnadsarvslagen som just nu behandlas av NTM-centralen i Nyland. Tillbyggnadsdelen har ännu inte skyddats, men skydd av dess fasad mot Bulevarden undersöks i detaljplanen.
Bekanta dig med planerna och ge respons senast den 6 maj
Du kan läsa och kommentera planerna i en webbenkät på https://kerrokantasi.hel.fi/ under perioden 15.4–6.5.2024. På Kerro kantasi-sidan kan du också titta på en video om planerna.
Du kan ta del av planen för deltagande och bedömning samt beredningsmaterialet för planen under tiden 15.4–6.5.2024 på webbplatsen https://www.hel.fi/planer. Skriftliga synpunkter på programmet för deltagande och bedömning samt beredningsmaterialet ska lämnas in till Helsingfors stads registratorskontor senast den 6 maj 2024.
Efter att åsikterna har erhållits framskrider planeringen och planförslaget utarbetas. Planförslaget går vidare till beslutsfattande år 2025.
Nyckelord
Kontakter
Otso Huhtala
arkitekt
Helsingfors stad, detaljplanläggning
tfn 09 310 37296, otso.huhtala@hel.fi
Bilder







Länkar
Andra språk
Följ Helsingin kaupunki, kaupunkiympäristön toimiala
Abonnera på våra pressmeddelanden. Endast mejladress behövs och den används bara här. Du kan avanmäla dig när som helst.
Senaste pressmeddelandena från Helsingin kaupunki, kaupunkiympäristön toimiala
Kaupunkiympäristölautakunnan päätöstiedote 31.3.202631.3.2026 17:27:23 EEST | Tiedote
Helsingin kaupunkiympäristölautakunta kokoontui tiistaina 31.3.2026. Kokouksen päätöstiedote (yhteenveto tehdyistä päätöksistä) on julkaistu kaupungin verkkosivuilla: Päätöstiedote » Päätöstiedote näkyy verkkosivuilla siihen asti kun kokouksen pöytäkirja julkaistaan. Pöytäkirja korvaa valmistuttuaan päätöstiedotteen.
Ett nytt fotbollsstadion för 8 000 åskådare planeras i Åggelby27.3.2026 08:55:08 EET | Pressmeddelande
Staden planerar att bygga ett nytt fotbollsstadion i Åggelby idrottspark. Samtidigt ska övriga motions- och idrottsförhållanden i området förbättras. Intill idrottsparken, nära snabbspårvägen, ska nya bostäder för 500 invånare byggas.
Oulunkylään suunnitteilla jopa 8 000 katsojan jalkapallostadion27.3.2026 08:55:08 EET | Tiedote
Oulunkylän liikuntapuistoon suunnitellaan jalkapallostadionin rakentamista. Samalla kehitetään alueen muita liikunta- ja urheiluolosuhteita. Liikuntapuiston viereen pikaraitiotien läheisyyteen tulisi uusia asuntoja 500 asukkaalle.
Helsingin kaupunkiympäristölautakunnan ympäristö- ja lupajaoston päätökset 26.3.202626.3.2026 18:15:18 EET | Tiedote
Kokouksen päätöstiedote (yhteenveto tehdyistä päätöksistä) on julkaistu kaupungin verkkosivuilla: Päätöstiedote 26.3.2026 » Päätöstiedote näkyy verkkosivuilla siihen asti kun kokouksen pöytäkirja julkaistaan. Pöytäkirja korvaa valmistuttuaan päätöstiedotteen. Jaosto kokoontuu seuraavan kerran torstaina 9.4.2026
Avaruusteemainen leikkipaikka Pohjois-Helsinkiin26.3.2026 13:41:53 EET | Tiedote
Helsingin kaupunki suunnittelee uutta teemaleikkipaikkaa Siltamäkeen. Leikkipaikan kaikki kalusteet ja varusteet uusitaan avaruusteeman mukaisiksi.
I vårt pressrum kan du läsa de senaste pressmeddelandena, få tillgång till pressmaterial och hitta kontaktinformation.
Besök vårt pressrum