Utbyggnaden och renoveringen av kulturcentret Stoa framskrider – arkitekturtävlingen inleds
28.1.2026 12:34:22 EET | Helsingin kaupunki, kaupunkiympäristön toimiala | Pressmeddelande
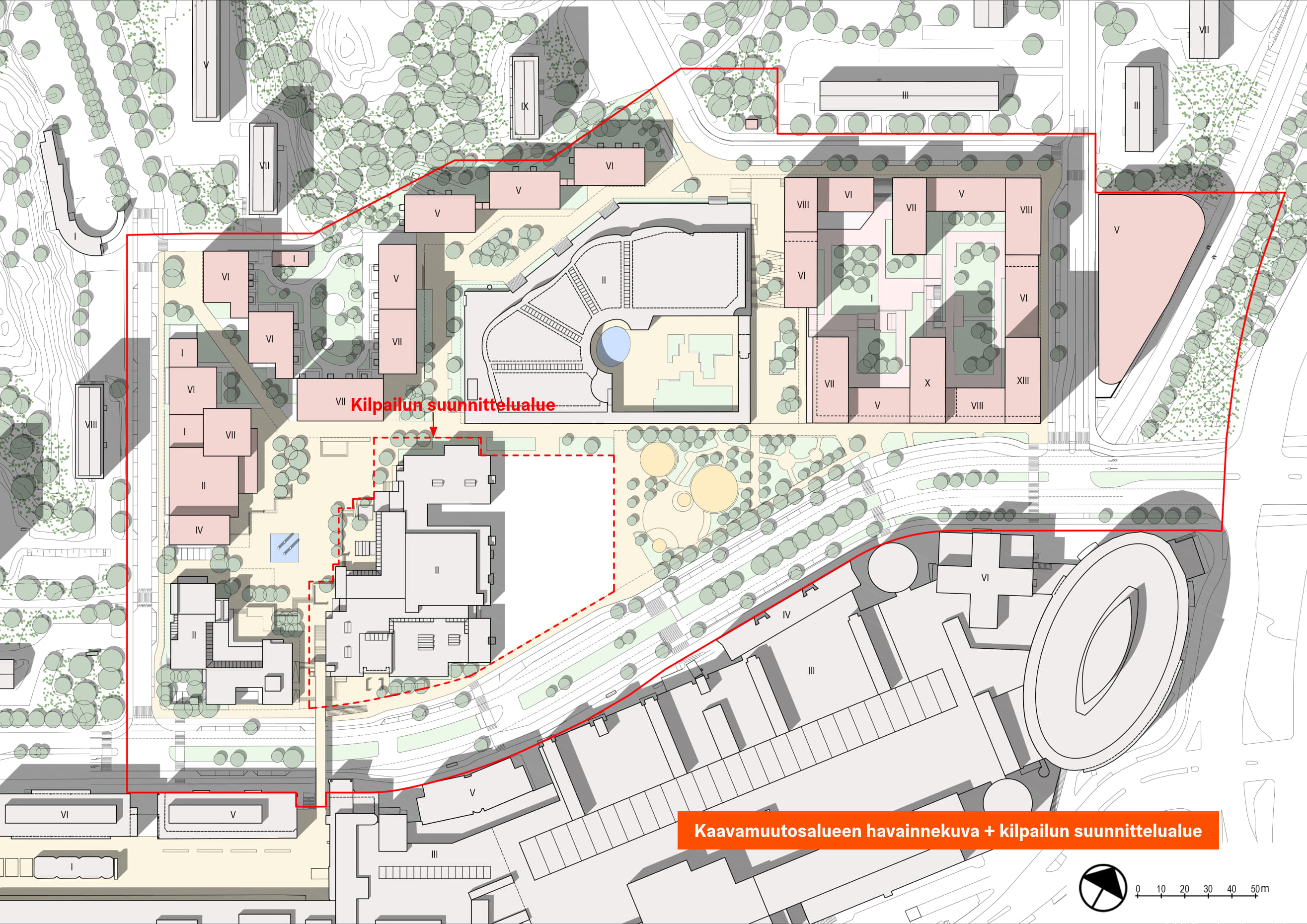
Lokalerna i kulturcentret Stoa (Åbohusvägen 1, Östra centrum) förnyas och byggnaden utvidgas. Helsingfors stad inleder arkitekturtävlingen i form av en inbjudningstävling om planeringen den 28 januari. Målet är ett mer funktionellt, öppet och mångsidigt kulturcenter.

I kulturcentret planeras en ny stor sal och fler lokaler för scenkonst och musik, motion och hobbyer samt platser för gemensamma aktiviteter och möten. Målet med tävlingen är att planera nya kundorienterade lokaler för kulturcentret, som tjänsterna kan använda flexibelt.
Stoa-komplexets arkitektur förväntas vara av god kvalitet. Planeringen värnar också om de arkitektoniska och kulturhistoriska värdena i den nuvarande byggnaden.
Kulturcentrets tjänster utvecklas
Förnyelsen av byggnaden stöder Stoas vision om ett närmare samarbete mellan husets aktörer och att i allt högre grad involvera stadsborna i planeringen av husets verksamhet.
Antti Sarpo, direktör för Stoa, säger: ”Många stadsbor deltog i planeringen av det nya Stoa. Idéerna och önskemålen som vi fått av stadsborna beaktas också i arkitekturtävlingen. På 2030-talet kommer Stoa att vara ett modernt kulturcenter och ett dragplåster i Östra Helsingfors som lockar besökare även i större omfattning.”
Viktiga tjänster, såsom biblioteket, ungdomslokalen, arenorna för konst och kultur samt arbetarinstitutet, bevaras och stärks i Stoa.
Arkitekturtävlingen har två faser – planerna kan kommenteras på webben senare
Sju deltagare har valts ut till den första fasen av arkitekturtävlingen. Deltagarna är både finländare och utlänningar. Valet av dem som går vidare till andra fasen av tävlingen görs hösten 2026. Tävlingens slutliga resultat avgörs i början av sommaren 2027.
Juryn granskar tävlingsförslagen särskilt med tanke på kvaliteten av komplexet och utvecklingsdugligheten. Bedömningen fokuserar på lokalernas funktion och anpassningsbarhet, den arkitektoniska huvudidén samt respekten för miljön i byggsättet.
Stadsborna kan kommentera planerna på webben under tävlingen. Juryn beaktar allmänhetens kommentarer vid sin bedömning.
Enligt den preliminära tidtabellen blir byggprojektet för Stoa klart 2031. Det förnyade Stoa öppnar sina dörrar våren 2032.
Kontakter
Arkitekturtävlingen
tävlingssekreterare Annina Vainio
A-Insinöörit
040 738 0838, annina.vainio@ains.fi.
Arkitekturtävlingen / utbyggnaden och renoveringen
Päivi Halme
Projektdirektör
Helsingfors stad
Stadsmiljösektorn
040 6371 995, paivi.halme@hel.fi
Kulturcentrets verksamhet
Juha Ahonen
Sektorchef
Kultur- och fritidssektorn
Helsingfors stad
09 310 76763, juha.a.ahonen@hel.fi
Bilder


Länkar
Andra språk
Följ Helsingin kaupunki, kaupunkiympäristön toimiala
Abonnera på våra pressmeddelanden. Endast mejladress behövs och den används bara här. Du kan avanmäla dig när som helst.
Senaste pressmeddelandena från Helsingin kaupunki, kaupunkiympäristön toimiala
Kaupunkiympäristölautakunnan päätöstiedote 27.1.202627.1.2026 19:23:06 EET | Tiedote
Helsingin kaupunkiympäristölautakunta kokoontui tiistaina 27.1.2026. Kokouksen päätöstiedote (yhteenveto tehdyistä päätöksistä) on julkaistu kaupungin verkkosivuilla: Päätöstiedote » Päätöstiedote näkyy verkkosivuilla siihen asti kun kokouksen pöytäkirja julkaistaan. Pöytäkirja korvaa valmistuttuaan päätöstiedotteen.
Vesilinnuilla on todettu lintuinfluenssaa Helsingissä26.1.2026 09:49:07 EET | Tiedote
Helsingistä on löytynyt luonnonvaraisia lintuja, joilla on todettu H5N1-tyypin lintuinfluenssa. Tartunnan riski ihmiselle on pieni, mutta lintujen eritteisiin ja kuolleisiin lintuihin koskemista tulee välttää. Siipikarjan omistajia kehotetaan suojaamaan lintunsa kontakteilta luonnonvaraisiin lintuihin.
Bron över Österleden på Brändö stängs för renovering26.1.2026 09:46:13 EET | Pressmeddelande
Renoveringen av bron vid Silversundsvägen inleds i början av februari och pågår fram till oktober 2026. Bron stängs för all trafik när arbetet börjar. Körfälten på Österleden kommer successivt att tas i bruk som arbetsområde vid bron.
Itäväylän ylittävä silta suljetaan korjauksen ajaksi Kulosaaressa26.1.2026 09:46:13 EET | Tiedote
Hopeasalmentien sillan uusiminen alkaa helmikuun alkupuolella ja kestää lokakuuhun 2026. Silta suljetaan kaikelta liikenteeltä töiden alkaessa. Sillan kohdalla Itäväylän kaistoja otetaan työalueeksi vaiheittain.
Rakennusten ja yleisten alueiden jaoston päätöstiedote 22.1.202622.1.2026 18:17:19 EET | Tiedote
Helsingin kaupunkiympäristölautakunnan rakennusten ja yleisten alueiden jaosto kokoontui torstaina 22.1.2026. Kokouksen päätöstiedote (yhteenveto tehdyistä päätöksistä) on julkaistu kaupungin verkkosivuilla: Päätöstiedote » Päätöstiedote näkyy verkkosivuilla siihen asti kun kokouksen pöytäkirja julkaistaan. Pöytäkirja korvaa valmistuttuaan päätöstiedotteen. Rakennusten ja yleisten alueiden jaoston seuraava kokous on torstaina 5.2.2026.
I vårt pressrum kan du läsa de senaste pressmeddelandena, få tillgång till pressmaterial och hitta kontaktinformation.
Besök vårt pressrum